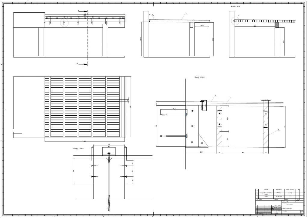
V tem poglavju vam predstavlamo izris, ki vam bo dal tehnični in materialni pregled nad samim stanovanjem in izdelku, ki si ga bomo zamislili. Samostojno izrišemo in uredimo tudi načrte zahtevnejših izdelkov.
Nazaj na 3D Izrisi
info@moric.si
Tel: (02)88 38 488, Mobi: 031 324 900
Legen 102, 2380 Slovenj Gradec
V tem poglavju vam predstavlamo izris, ki vam bo dal tehnični in materialni pregled nad samim stanovanjem in izdelku, ki si ga bomo zamislili. Samostojno izrišemo in uredimo tudi načrte zahtevnejših izdelkov.
Nazaj na 3D Izrisi